Розничная цена:
2 497 900 руб.
Цена Топас 150:
2 248 110 руб.
Технические характеристики Топас 150
Цены на Монтаж
Модификации
Документация
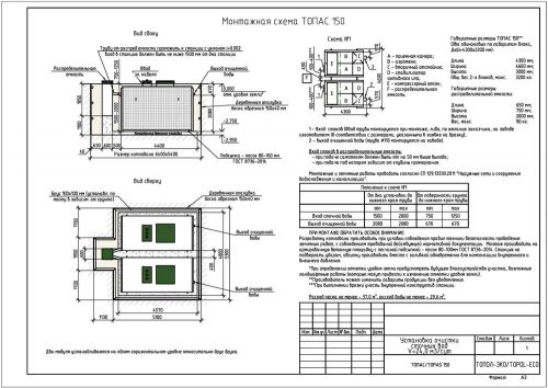
Монтажные схемы
Отвод сточных вод
Доставка и оплата
| Шеф-монтаж | Стандартный монтаж | Топас 150 “под ключ”* | |||
| в песок | в суглинок | в глину | в плывун | ||
| 40 000 руб. | 36 000 руб. | 36 000 руб. | 36 000 руб. | 36 000 руб. | Акция! |
*Работы, включенные в монтаж «под ключ»:
Оплата за автономную канализацию и монтажные работы возможна несколькими способами.
Эксплуатационные характеристики канализации “Топас”
Купить данную модель - означает гарантированно обеспечить 150 пользователям:
Даже при пиковых нагрузках электропотребление очистной установки не превышает 30 кВт в сутки. Что также можно считать весомой причиной для того чтобы купить станцию.
Монтаж и эксплуатация
Отличительной чертой станции является ее простота и надежность при эксплуатации. Но добиться этого можно только после целого ряда монтажных работ для проведения которых понадобятся:
Избежать всех этих, пусть и не очень сложных по организации и исполнению работ можно купив Топас 150, цена с установкой под ключ которого не только избавит заказчика от лишних хлопот, но и позволит существенно сэкономить.
На данный момент времени для владельцев гостиниц, мини-отелей и т. д, в нашей компании проводится акция.
Достоинства
Более подробную информацию об оборудовании, скидках, акциях и всей линейке предлагаемых услуг от компании можно узнать по телефону 8(495)066-46-39
Остались вопросы? Свяжитесь с нами!
Мы всегда готовы бесплатно проконсультировать по вопросам, связанным с продукцией Топас, а также помочь с выбором оптимальной модели септика для решения ваших задач.
